Skip to content
Home
Services
Contact
Gallery
Ongoing Projects
Home
Services
Contact
Gallery
Ongoing Projects
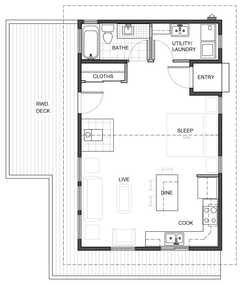
Meyer Cottage
A Cottage for Heather Meyer
Home
Services
Contact
Gallery
Ongoing Projects